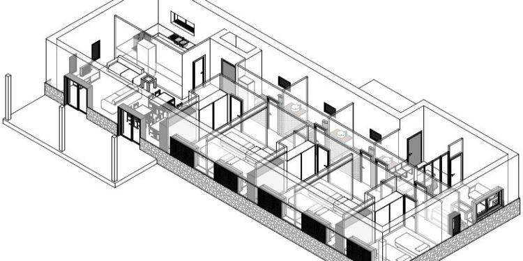
El Consell de Formentera ha informat avui que ja ha sortit a licitació la construcció del projecte d’habitatge destinat a menors de dotze anys en situació de desprotecció. L’habitatge disposarà de deu habitacions i estarà ubicat a l’àrea sociosanitària, al costat del Centre de Dia.
Si es compleixen els terminis d’execució, l’obra estarà enllestida al llarg de 2023. El pressupost és de 496.966 euros més IVA i el projecte compta amb una subvenció de 150.000 euros dels fons europeus destinats a la recuperació econòmica.
El conseller de Benestar Social, Rafael Ramírez, ha assenyalat que “amb aquesta llar, s’afavorirà l’atenció individualitzada i familiar dels menors en acolliment, la qual cosa proporcionarà un millor entorn d’atenció psicosocial dels infants i, a més, es crearà un recurs d’atenció a famílies vulnerables, una problemàtica que afecta específicament les dones, que són majoritàriament les responsables de la cura i l’atenció a la infància».
En l’actualitat, Formentera no disposa de cap recurs d’acolliment residencial per a menors en aquesta situació i, actualment, al voltant d’un 30 % dels usuaris del servei de protecció de menors a Formentera són susceptibles de fer servir aquest espai.






