El Servicio de Salud de las Islas Baleares ha adjudicado las obras de construcción de la nueva Unidad Básica de Salud Puig d’en Valls tras haber recibido ofertas de dos empresas de construcción y después de haber adjudicado el proyecto en julio de este año.
La nueva Unidad Básica de Salud Puig d’en Valls, sustituirá a la que está actualmente en funcionamiento desde 1986, y la superficie de este edificio será de 416,71 metros cuadrados construidos en una única planta.
El centro sanitario de Puig d’en Valls tiene actualmente 3.085 tarjetas sanitarias repartidas en dos equipos de salud (dos médicos y dos enfermeras).

Las dimensiones de la actual unidad básica de salud solo permiten atender en Puig d’en Valls a 1.440 usuarios con uno de los equipos, la falta de espacio de esta pequeña unidad ha obligado en los últimos años a que los 1.645 restantes reciban atención en el Centro de Salud Vila. Las nuevas instalaciones permitirán acercar la asistencia sanitaria a 1.645 personas que hasta ahora se desplazan al centro de la avenida 8 d’agost en Eivissa.
Una inversión de cerca de un millón euros para Puig d’en Valls
La nueva Unidad Básica de Salud Puig d’en Valls se construirá en la calle Perú nº 8 de esta parroquia perteneciente al término municipal de Santa Eulària, destaca el Área de Salud en un comunicado.
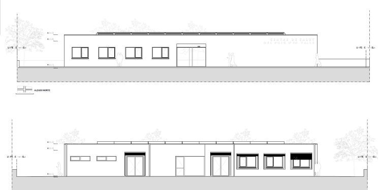
La superficie total de parcela de 1.140,00 m² de la futura Unidad Básica tendrá una superficie construida interior de 416,71 m² en una sola planta. Contará con seis consultas de 16 m², una sala polivalente de 32 m², además de tres almacenes y tres vestuarios.
La unidad dispondrá de dos entradas al edificio; la principal, en el centro de la fachada norte del edificio, y la de acceso de personal, en la fachada oeste, vinculada a los usos menos públicos.
La entrada principal contará con un techado de unos 5 m² de superficie para la protegerse de la lluvia y el sol.

Todas las consultas, junto con la zona de espera, quedan agrupadas en un mismo conjunto dentro del edificio y se organizan en dos bloques de cuatro, todas ellas con vistas al exterior, iluminadas exclusivamente mediante huecos en fachada que garantizan la entrada de luz natural, renovación de aire natural, y apertura al exterior.
La zona de curas y técnicas especiales / urgencias tienen acceso exterior propio cerca de la zona de maniobra de la ambulancia, y de rápida comunicación interior con la recepción, y resto de consultas.
Por último, habrá un aparcamiento que consta de cuatro plazas en la zona sur de la parcela, junto al muro del torrente.
El plazo de ejecución de la obra será de nueve meses a partir del día siguiente de la firma de comprobación del replanteo. La comprobación del replanteo, por su parte, se llevará a cabo dentro del plazo máximo de un mes a partir del día siguiente en que se formalice el contrato.







Buena noticia para los vecinos… ojalá se equipara igual al resto de poblaciones de Eivissa…últimamente todos los proyectos caen en el mismo municipio. Por qué será?